极简奶油风 | 不被定义,安静自在!
发布时间:2026-03-04 08:07:22 浏览:[
]次
文章内容
奶油风设计是一种以奶油色为主色调的家居设计风格,它结合了黄、白、棕色等色彩,形成温暖、柔和的氛围。奶油色是一种高明度、低饱和度的色彩,介于白色与米黄之间,给人一种细腻、温柔的感觉。这种风格汲取了法式浪漫和简约的精髓,注重细节和质感,适合于各种场所,如客厅、餐厅和卧室等。

装修风格:奶油风格
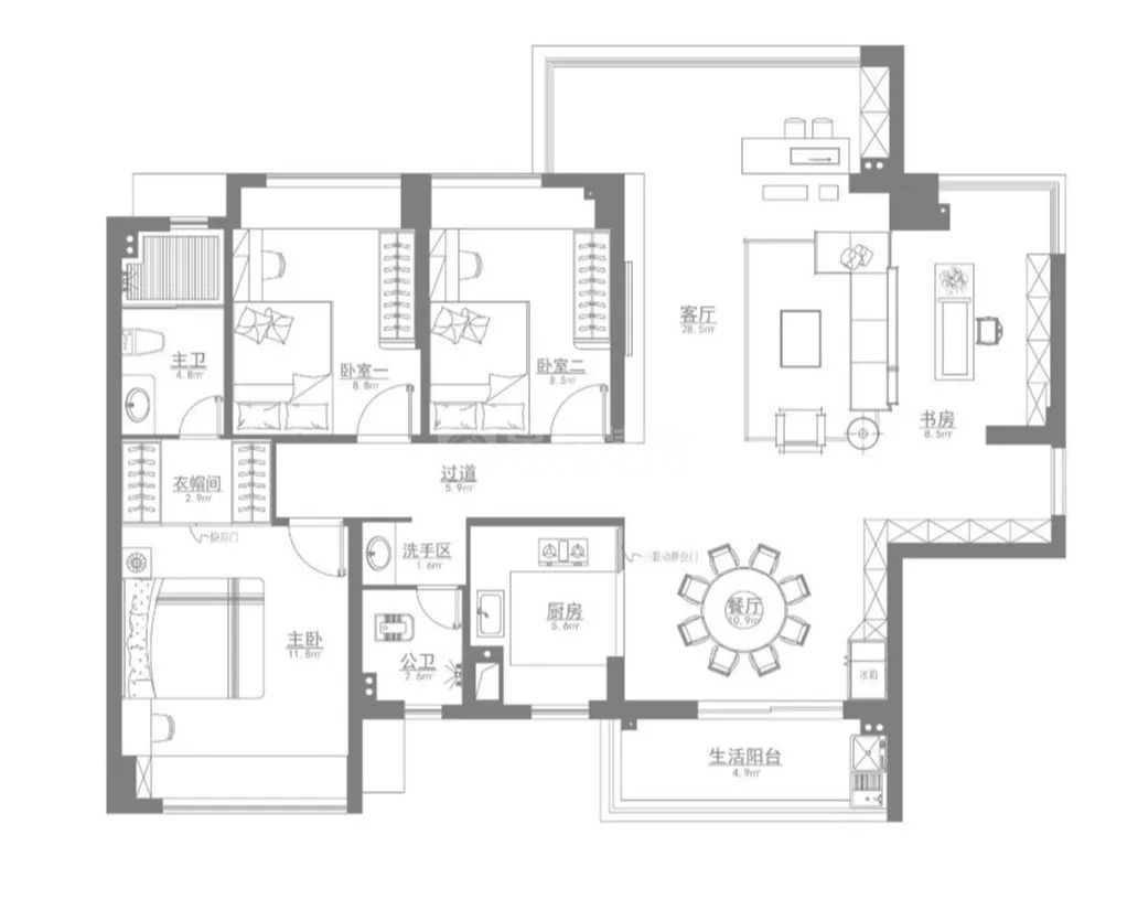
建筑面积:133㎡
建筑类型:四居室
设计团队:揭阳星艺装饰
项目名称:泰时代
户型

玄关

家居设计不仅是装点门面,更是展现咱家生活态度的镜子。玄关,作为家的“门面担当”,既要给客人留下好印象,又要方便家人日常出入。设计时要实用与美观并存,让家既好看又好用!
客厅


这对夫妇热爱生活和自驾旅行,喜欢大自然的乐趣。我们的设计师在设计时充分尊重他们的舒适、自由和随性需求,让家居空间充满自然与自由的气息,仿佛把大自然的美好带回家中。
厨餐厅

厨房设计简约而优雅,米色橱柜与淡雅墙面相得益彰,空间感倍增,明亮宽敞。完备的厨具与设施让您尽享烹饪乐趣。餐厅的圆桌搭配舒适座椅,适合家人朋友欢聚一堂,共品美食。整体风格以简洁流畅的线条和精致细节呈现,现代感十足,优雅而不失简约。这样的设计既实用又美观,为您的家居生活增添一份舒适与惬意。
卧室

奶油风不只是风格,更是温暖生活的象征。家,是温柔踏实的归宿。我们常忙于追求遥远目标,却忘了家的温暖与简单幸福。灯火阑珊处的温暖和柴米油盐的充实,才是人生真正的幸福所在。让我们放慢脚步,珍惜家的每一刻,感受那份简单而真挚的温暖,这才是生活最本真的模样。
