如入艺术之境,轻法式别墅,书写诗意人生
文章内容
你知道吗,生活就像一幅大大的画卷,里面藏着各种各样的风格。其中有一种,它既有浪漫的感觉,又非常实用,我们就叫它轻法式。现在,我们把这个风格用在一栋三层的大别墅里,面积有500平米呢!想象一下,当你走进这栋别墅,就像是被清晨的阳光拥抱,那种浪漫的感觉,真的是无处不在。

装修风格:轻法式风格
建筑面积:500㎡
建筑类型:别墅
设计师:南京星艺装饰姚娟娟
项目名称:锦隆花园
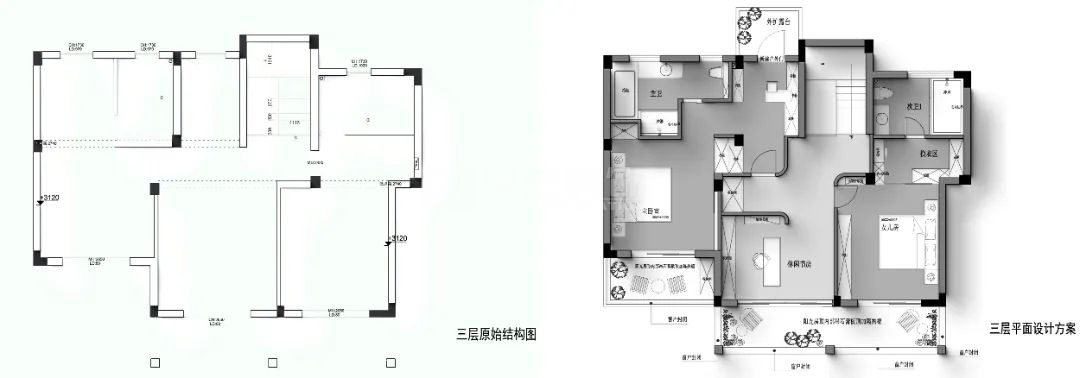
户型
这栋别墅的设计真是既精致又简约,就像把生活变成了艺术品。每一个地方,每一个小细节,都像是在讲述着一个个动人的故事,让人看了就觉得心里暖暖的,好像走进了一个充满诗意的世界。

房屋上下共计三层,一层规划为会客厅、餐厨区和娱乐健身区,设计师将多余的墙体全部打通,形成了宽大的横厅,开放式厨房的设计,加强了空间之间的对话和交互。

设计师对于二层的设计,首先取消了客厅改为阅读厅,在充分考虑家庭成员的具体需求后,将空间重新规划为两个长辈房和一间客房,双卫生间的设计满足了日常生活习惯。并且最大限度的利用边角空间增加了储物功能。

三层是属于主人和子女的私密空间,睡眠区、衣帽间、淋浴区和书房一应俱全,实现了屋主对于生活的所有需求和向往。
客餐厅

走进别墅,第一眼就能看到一个大大的横厅。那里的天花板高高的,视野特别开阔,还有超大的落地窗,感觉整个空间都特别大,特别舒服。

墙上那些法式风格的装饰线条,就像是在跳舞一样,优美极了。还有那盏羽毛灯,它静静地挂在那里,发出柔和的光,让整个空间都变得温暖起来。
这些设计,真是把精致和浪漫都展现出来了,看了就让人喜欢。

在这里,可以举办热闹的派对,也可以安静地享受一个人的时光。
厨房
厨房和餐厅是连在一起的,这样两个地方就可以更好地互动啦。那个中间的小岛台,除了可以放东西和帮忙做饭,还像是一个可以聊天、分享生活的小角落,特别温馨。
这样的设计,让生活变得更有趣,更有情感。
整个厨房的设计很巧妙,走起来很方便。颜色主要是优雅的白色,天花板上用的是那种既好看又大气的蜂窝铝大板,和餐厅的吊顶连起来,看起来更自然。这样的设计不仅实用,还很美观,真是让人喜欢。
阅读区

阅读厅的设计可不仅仅是摆摆家具那么简单,它可是代表着一种生活态度和品味呢。在这个超级温馨的地方,每一个小细节都是精心设计的,让人觉得特别用心。

在这个小小的角落里,米色和白色的色调如同一首悠扬的诗篇,静谧而优雅。壁炉不仅仅是一种装饰,它以熊熊火光,让空间洋溢着家的温暖。
坐在沙发上,品味书香,享受温暖。让每一个瞬间都成为居者生命中最美好的回忆。
卧室

整个卧室的设计,没有任何多余的色彩与装饰,而是将优雅和简洁融入其中。天花采用弧形曲面来过渡凸出的横梁,丰富的层次感让设计更有味道。

卧室的地面采用了实木地板鱼骨拼的铺设方式,整个地面立体感十足,仿佛波涛汹涌的海浪,具有强烈的视觉冲击力。

搭配浅色木质家具和精致的金属装饰,使整个空间散发出自然、舒适的气息。材质上选用柔和的棉麻和精致的丝绸材质,为空间增添一份高贵与典雅。
